Apartament | Spacerem do plaży | dwa balkony, miejsce postojowe
- 1770000 PLN
Apartament | Spacerem do plaży | dwa balkony, miejsce postojowe
- 1770000 PLN
Przegląd
- Mieszkanie
- 85
Opis
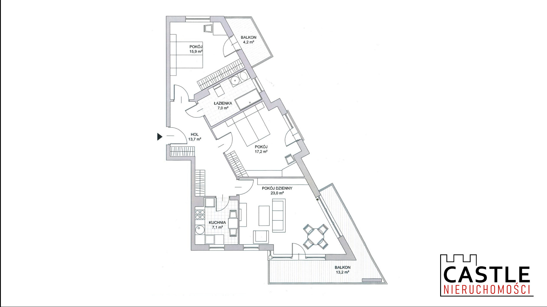
3 pokojowy apartament w podwyższonym standardzie wykończenia wnętrz, w prestiżowej inwestycji Rezydencja Marina- Gdańsk Przymorze. Idealny dla osób, które chcą zamieszkać blisko morza, w bardziej kameralnej zabudowie.
Serdecznie zapraszam do zapoznania się z ofertą apartamentu o powierzchni 85,17 m2, w skład której wchodzi:
-salon z wyjściem na taras,
-niezależna kuchnia – komfortowy metraż,
-sypialnia z wyjściem na balkon,
-sypialnia,
-przestronna łazienka z wanną oraz prysznicem,
Do mieszkania przynależy miejsce w hali garażowej – w cenie 100 000 zł
Standard wykończenia i wyposażenie:
-apartament wykończony, wyposażony gotowy do zamieszkania,
-do dyspozycji są dwa duże balkony wyposażone w komplet wypoczynkowy,
-kuchnia oraz łazienka wyposażona w sprzęty AGD- w cenie oferty!
-apartament wykończony w stylu Hamptons,
-na podłogach położono drewno, w sypialni komfortowa wykładzina,
-ściany gładzone pomalowane/tapeta,
Inwestycja, w której znajduje się apartament jest w pełni strzeżona, monitorowana. Do dyspozycji mieszkańców jest klub fitness z siłownią, sauny, plac zabaw. Deweloper przewidział bardzo dużo zieleni, obiektów małej architektury w postaci rzeźb, terenów rekreacyjnych oraz mostków.
Lokalizacja – to cudowne miejsce dla osób ceniących sobie bliskość morza z dobrymi połączeniami z innymi częściami Trójmiasta. W sąsiedztwie pełna dostępność usług, szkoły, sklepy, mniejsze oraz większe dyskonty spożywcze. Trasy rowerowe, park Reagana, las – wszystko w zasięgu krótkiego spaceru.
Dostępność- od zaraz!
Nie zwlekaj! Zadzwoń, zapytaj o szczegóły i wynajmij!
Kontakt w sprawie oferty
Paulina Bień
Biuro Nieruchomości Castle
Adres
Otwórz w Mapach Google-
Adres: Gdańsk, Przymorze
-
Miasto: Gdańsk
-
Powierzchnia: przymorze
Szczegóły
Zaktualizowano na 23 października, 2025 na 3:03 pm-
Cena 1770000 PLN
-
Wielkość nieruchomości 85
-
Pokoje 3
-
Rodzaj nieruchomości Mieszkanie
-
Stan nieruchomości Na sprzedaż








