Łąkowa I Śródmieście I pod lokal na siłownię
- 9006 PLN
Łąkowa I Śródmieście I pod lokal na siłownię
- 9006 PLN
Przegląd
- Komercyjne
- 209 m²
Opis
Prezentuję lokal do wynajęcia w bardzo dobrej lokalizacji Gdańska – Dolne Miasto, ul. Łąkowa!
Lokal jest w stanie do kapitalnego remontu, prezentowane wizualizacje są jedynie możliwą opcją aranżacji wnętrza i nie odpowiada aktualnemu stanu technicznemu.
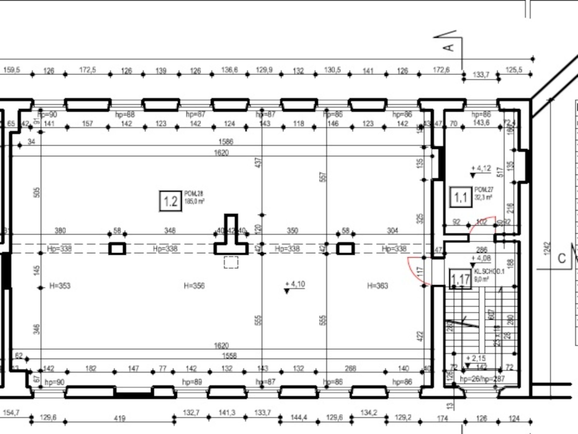
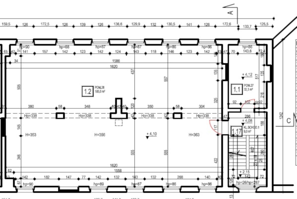
Nieruchomość:
– powierzchnia:
a) sala główna: 185m2;
b) pomieszczenie: 15,2m2;
c) klatka schodowa: 9m2;
– do nieruchomości jest osobne wejście;
– lokal można zaaranżować według własnych potrzeb;
– miejsca parkingowe (płatne) są obok oraz na ulicy Łąkowej;
– są duże okna, które dają dużo dziennego światła;
– do nieruchomości doprowadzone są instalacje: wodna, elektryczna i kanalizacyjna – wszystkie są do wymiany;
Opłaty:
Czynsz: 7322 zł netto + VAT = 9006 zł + opłaty za media według zużycia.
Dla kogo?:
Zaaranżowaliśmy lokal pod siłownię, ponieważ klimat powojennej fabryki broni idealnie pasuje, aby stworzyć siłownię w takim miejscu, zachowując oryginalny klimat.
Oczywiście zapraszamy do kontaktu wszystkie firmy, które chciałyby zobaczyć nieruchomość, a niekoniecznie reprezentują branżę fitness.
Dysponuję zdjęciami w stanie rzeczywistym.
W pobliżu:
Znajdują się bloki mieszkalne, supermarket, powstają nowe inwestycje, a także są lokalne sklepiki. Do przystanku tramwajowego mamy około 10 minut pieszo.
Do Starego Miasta dojdziemy spacerem w około 15 minut- ogromna zaleta tej lokalizacji.
Serdecznie zapraszam do zapoznania się z ofertą! Mamy także obok lokal o powierzchni około 468m2 lub można wynająć dwa lokale.
Kontakt w sprawie oferty:
Biuro Nieruchomości CASTLE
Katarzyna Kacperska
Gdańsk, ul. Kartuska 69
Powyższy opis ma charakter informacyjny i nie stanowi oferty handlowej w rozumieniu Kodeksu Cywilnego. Dane mogą ulec zmianie. Biuro Nieruchomości CASTLE zapewnia bezpieczeństwo transakcji oraz profesjonalną obsługę do momentu przekazania nieruchomości nowym właścicielom. Pomagamy w doborze kredytu.
Adres
Otwórz w Mapach Google-
Adres: Łąkowa, Dolne Miasto, Śródmieście, Gdańsk, województwo pomorskie, 80-767, Polska
-
Miasto: Gdańsk
-
Kod pocztowy: 80-767
-
Kraj: Polska
Szczegóły
Zaktualizowano na 1 kwietnia, 2026 na 1:43 pm-
ID nieruchomości 26/WYN/2A
-
Cena 9006 PLN
-
Wielkość nieruchomości 209 m²
-
Pokój 0
-
Pokoje 2
-
Rodzaj nieruchomości Komercyjne
-
Stan nieruchomości Na wynajem
-
Rodzaj budynku kamienica
-
Winda Nie
-
Stan mieszkania Do remontu
-
Miejsca parkingowe 1
-
Forma własności Własność
-
Balkon Nie
-
Piwnica Nie





